Viviendas
ALELLA – Psge. Angel Guimerà
Promoción de obra nueva en pleno centro de la singular población de Alella, concretamente en la ubicación donde anteriormente estuvo el famoso restaurante “El Niu”. Esta promoción se encuentra en un pasaje peatonal, en pleno núcleo urbano al lado de comercios, colegios, Ayuntamiento, mercado y todo tipo de servicios como el transporte público pero a la vez, además, con la tranquilidad de no estar en una calle con tráfico rodado.
La rehabilitación integral del edificio “El Niu“ se ha consolidado en tres magníficas viviendas, modernas, luminosas, y con soleados espacios privados exteriores, en todas ellas, como jardín o terraza. Todas las viviendas han sido meticulosamente estudiadas para conseguir el máximo aprovechamiento de los espacios y se han equipado con Aire Acondicionado, calefacción, empleando materiales de alta calidad en los acabados. Además, en la planta baja del edificio, hemos construido un local comercial apto para múltiples actividades.
Vivienda |
Dormitorios |
Baños |
Sup. construida |
Sup. terraza |
Precio |
Plano |
|---|---|---|---|---|---|---|
| 101a | 3 + BODEGA | 2 | 130m2 | 100 m2 | Vendido | PLANO 1 |
| 201A | 1 + buhardilla | 1 | 70m2 | 30 m2 | Vendido | PLANO 1 |
| 202a | 1 + buhardilla | 1 | 90m2 | 30 m2 | Vendido | PLANO 2 |
BADALONA – Pep Ventura
OPORTUNIDAD. Luminosas y amplias viviendas recién reformadas, en zona céntrica de Badalona, al lado de la Plaza Pep Ventura, concretamente en Carrer Saragossa, entre Carrer Baldomer Sola y Av. Alfonso XIII. Todas las viviendas son amplias y exteriores, con acabados de alta calidad, suelos de parket, calefacción y agua caliente por gas. Carpintería de aluminio y cristales con aislamiento térmico. Con balcón y amplia terraza.
Edificio de tan solo 3 vecinos con una sola vivienda por planta.
Excelente comunicación con transportes públicos (metro, autobús y tren). A tan sólo 8 minutos caminando de la Calle del Mar y a 8 minutos caminando de la playa. Comercios y colegios en todo su entorno. A 2 minutos de la autopista C-31
Planta Primera
Amplio y luminoso piso recién reformado, a estrenar. Una sola vivienda de más de 112 m2 útiles (152 m2 construidos) que consta de 4 habitaciones (una de ellas de 17 m2 útiles), 2 baños completos (uno con bañera y el otro con ducha), amplio salón comedor de 30 m2, cocina office con espacio suficiente para una mesa, balcón y terraza en la misma planta, así como otra soleada y amplia terraza privada en la cubierta (33, 25 m2). En zona céntrica de Badalona, junto a la Plaza Pep Ventura, al lado de comercios, colegios y con una comunicación excelente tanto con transporte público (bus, metro, tren) como por autopista y carretera. A tan sólo 8 minutos a pie de la playa.
Precio: Vendido
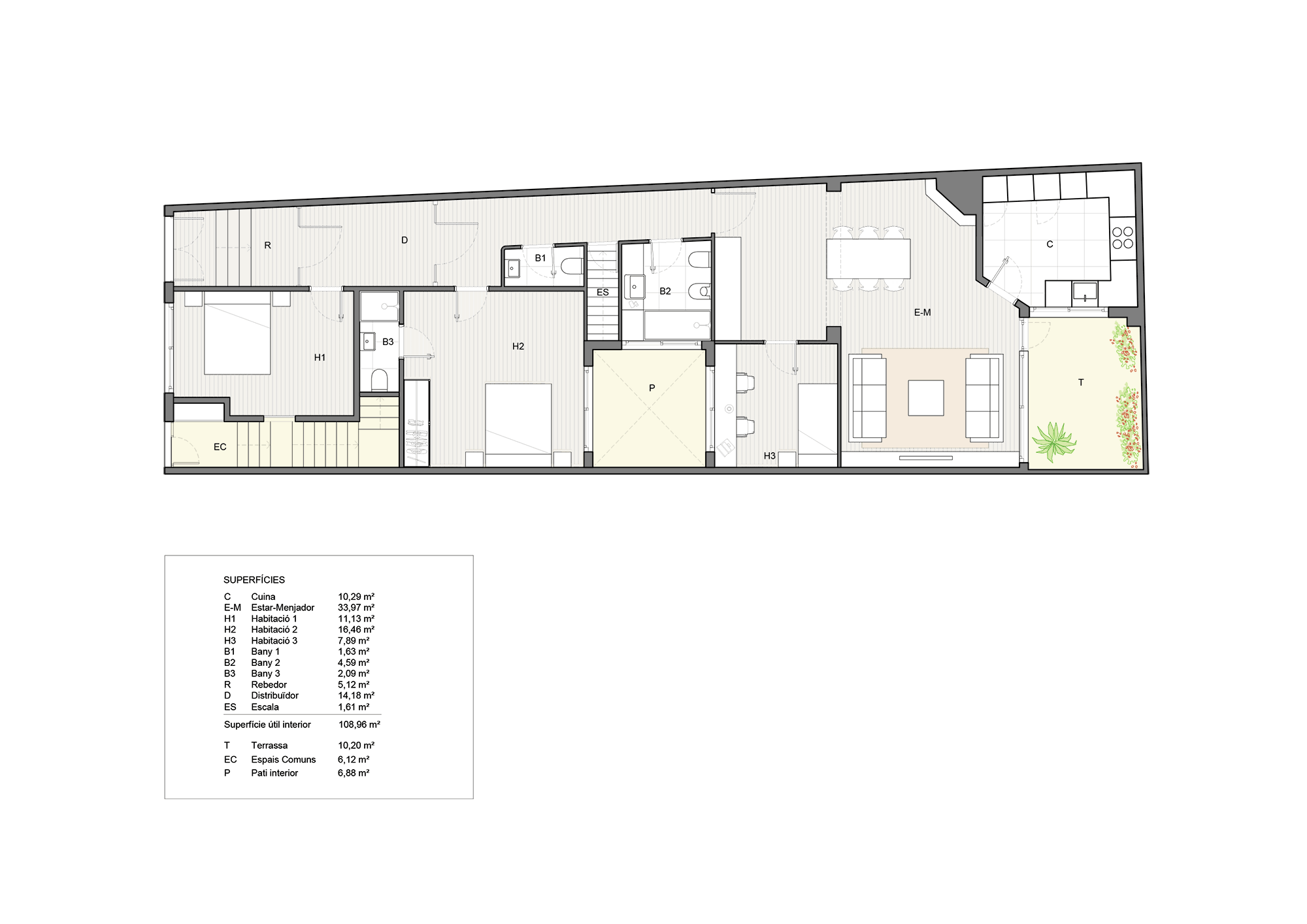
Planta Segunda
Amplio y luminoso piso recién reformado, a estrenar. Una sola vivienda de más de 130 m2 útiles (173 m2 construidos) que consta de 4 habitaciones (una de ellas de 14 m2 útiles), 2 baños completos (uno con bañera y el otro con ducha), amplio salón comedor de 33 m2, cocina office con espacio suficiente para una mesa, balcón en la misma planta, así como una soleada y amplia terraza privada en la cubierta (33, 25 m2), además de una buhardilla luminosa y práctica de 19 m2 útiles. En zona céntrica de Badalona, junto a la Plaza Pep Ventura, al lado de comercios, colegios y con una comunicación excelente mediante transporte público (bus, metro, tren) como por autopista y carretera. A tan sólo 8 minutos a pie de la playa.
Precio: Vendido
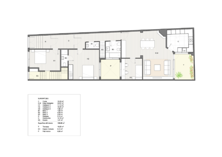
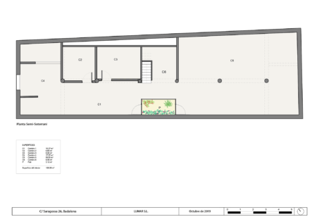
Planta baja.
Muy amplio, luminoso, práctico, singular y con techos altos.
Distribuido en dos plantas de de 130 m2 cada una. En la planta a pie de calle se encuentra la vivienda, recién reformada, que dispone de entrada privada independiente, recibidor, 3 habitaciones dobles, una de ellas tipo suite, 2 baños completos y 1 aseo, amplio salón-comedor, cocina tipo office, Terraza o patio exterior privado y escalera privada que comunica con la planta semi-sótano. En planta semisotano, se encuentra una sala diáfana y dos salas más pequeñas con un pequeño patio interior, que da luz natural y ventilación. Precio: Vendido
Vivienda |
Dormitorios |
Baños |
Sup. ÚTIL
|
Sup. terraza |
Precio |
Planos |
|---|---|---|---|---|---|---|
| Planta baja | 3 | 3 | 231m2 | 21M2 | VENDIDO | PLANO 1 PLANO 2 |
| PRIMERA | 4 | 2 | 102m2 | 42M2 | Vendido | PLANO 1 PLANO 2 |
| SEGUNDA | 4+ BUHARDILLA | 2 | 123M2 | 37M2 | Vendido | PLANO 1 PLANO 2 |
































Facebook
Linkedin
Twitter
Whatsapp
Telegram